
Nenince, okres Veľký Krtíš, Banskobystrický kraj
Typ: | priamy predaj |
Kategória: | dom |
Spoločnosť U9, a.s. ponúka exkluzívne na predaj jednopodlažný, čiastočne podpivničený rodinný dom v obci Nenince.
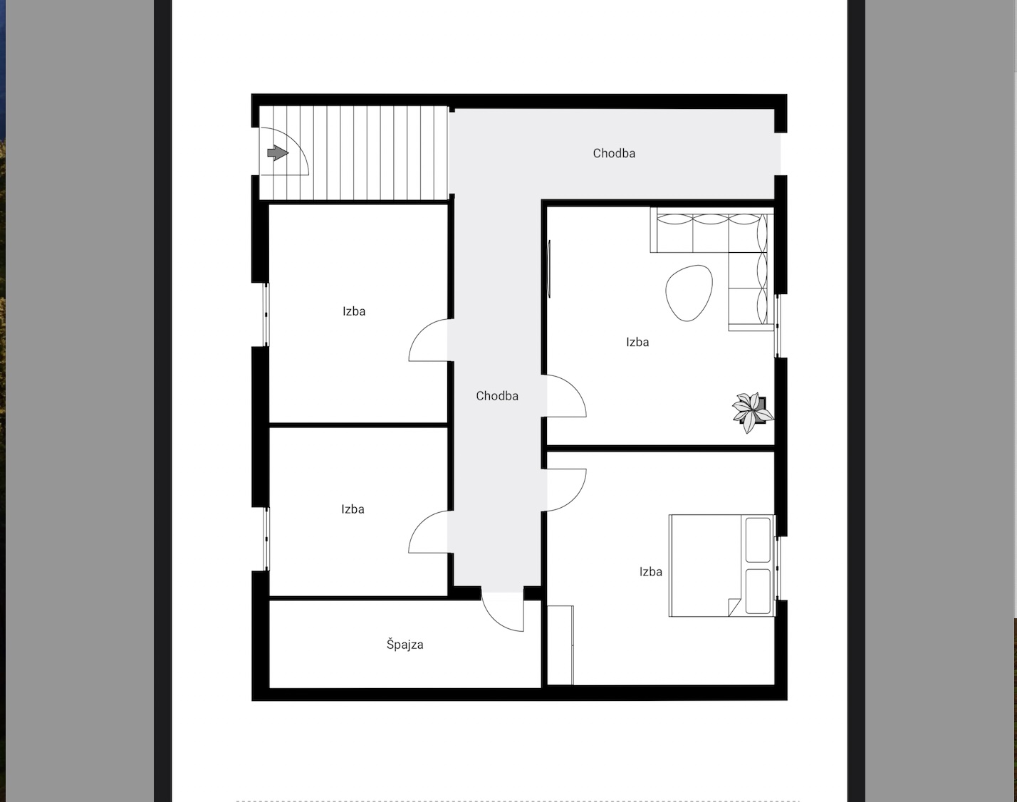
I.PP pozostáva zo vstupnej chodbičky, kúpeľne a ďalších menších priestorov, ktoré slúžili na uskladňovanie. I.NP pozostáva zo vstupnej chodby so schodiskom, veľkej presvetlenej chodby, z ktorej vedú samostatné vstupy do ďalších miestností. Dispozíciu tvoria ďalšie 4 obytné miestnosti a jedna úzka, využívaná ako špajza. I a II podlažie majú osobitné vstupy.
Rodinný dom je postavený približne v roku 1970 z tvárnic. RD je v pôvodnom stave, okná v celom dome sú pôvodné drevené, pokryté vonkajšími žalúziami. Strecha na dome je valbová, pokrytá škridlovou krytinou.
RD je napojený na elektrinu, dostupný na pozemku je zemný plyn, verejný vodovod a verejnú kanalizáciu sú k dispozícii. Na pozemku sa nachádza vlastná studňa, ktorá bola využívaná na pitnú vodu. Vykurovanie v dome bolo zabezpečené prostredníctvom ústredného plynového kúrenia. Zdrojom prípravy TÚV bol bojler.
Rodinný dom sa nachádza na mierne svahovitom pozemku s výmerou približne 600 m2.
Obec Nenince je je vzdialená 18 km od okresného mesta Veľký Krtíš, 36 km od pohraničného mesta Šahy a 10 km od maďarského mesta Balážske Ďarmoty.
Obec má veľmi dobrú občiansku vybavenosť, nakoľko sa v nej nachádza materská škola, základná škola I. stupeň, všeobecný lekár pre dospelých, pediater, lekáreň, potraviny, záhradkárstvo, pohostinstvo, reštaurácia, elektro, kozmetické a kadernícke služby. V blízkosti sa nachádza príjemné prírodné prostredie a rybník, vhodný na rybolov.
V prípade, že vás táto ponuka zaujala a máte záujem o bližšie informácie alebo obhliadku, neváhajte nás kontaktovať na čísle 0949 172 475. Cena nehnuteľnosti je vrátane kompletného realitného a právneho servisu.
Tento rodinný dom je vhodný na trvalé bývanie ale aj na rekreáciu ako chata.
Predajná cena | 35 000 € |
Máte záujem?
Dajte nám Vaše kontaktné informácie
a my sa Vám ozveme.
Modrý Kameň Predaj
Veľký Krtíš Prenájom
Veľký Krtíš Predaj
Kiarov Dražba
Veľký Krtíš Predaj